4 Hof Lane, Foxton House and Land

4 Hof Lane, Foxton, 4814, Manawatu-Whanganui, Horowhenua
BUILDING STARTS SPRING
  • 2 Beds
  • 1 Baths
  • 102 Size

 Description

CONVENIENT, EASY LIVING: A short walk from town and tranquil living

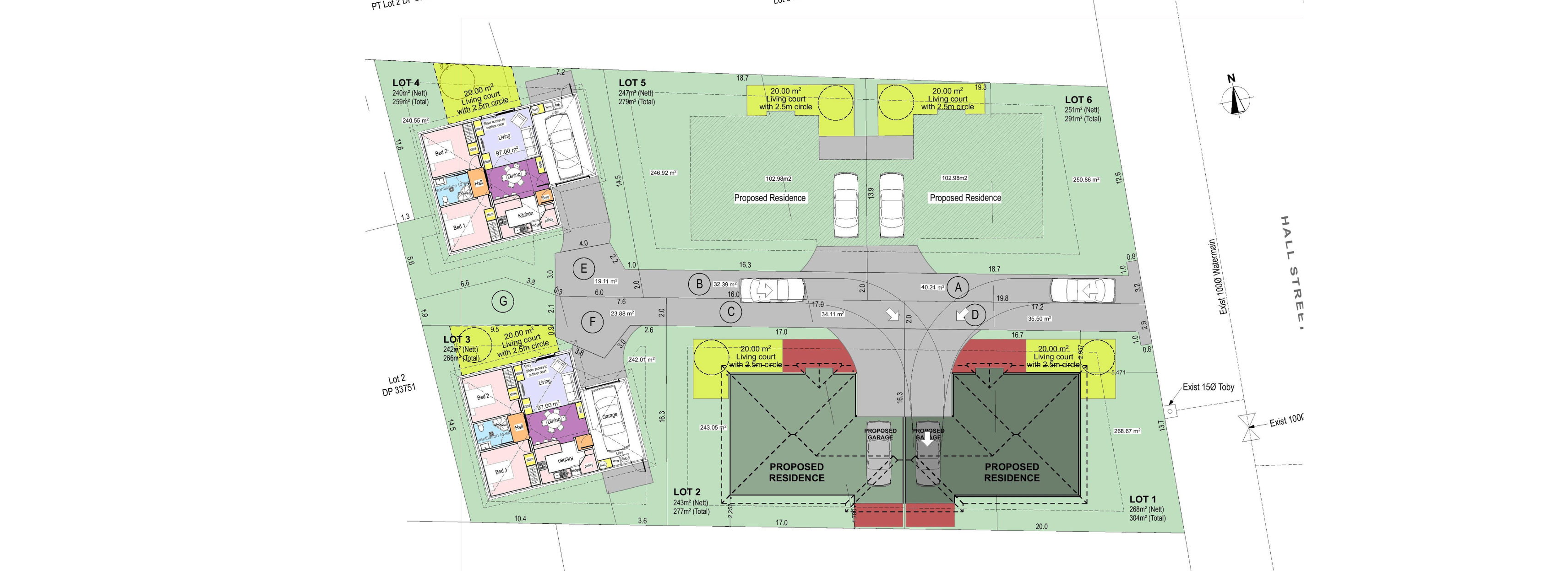
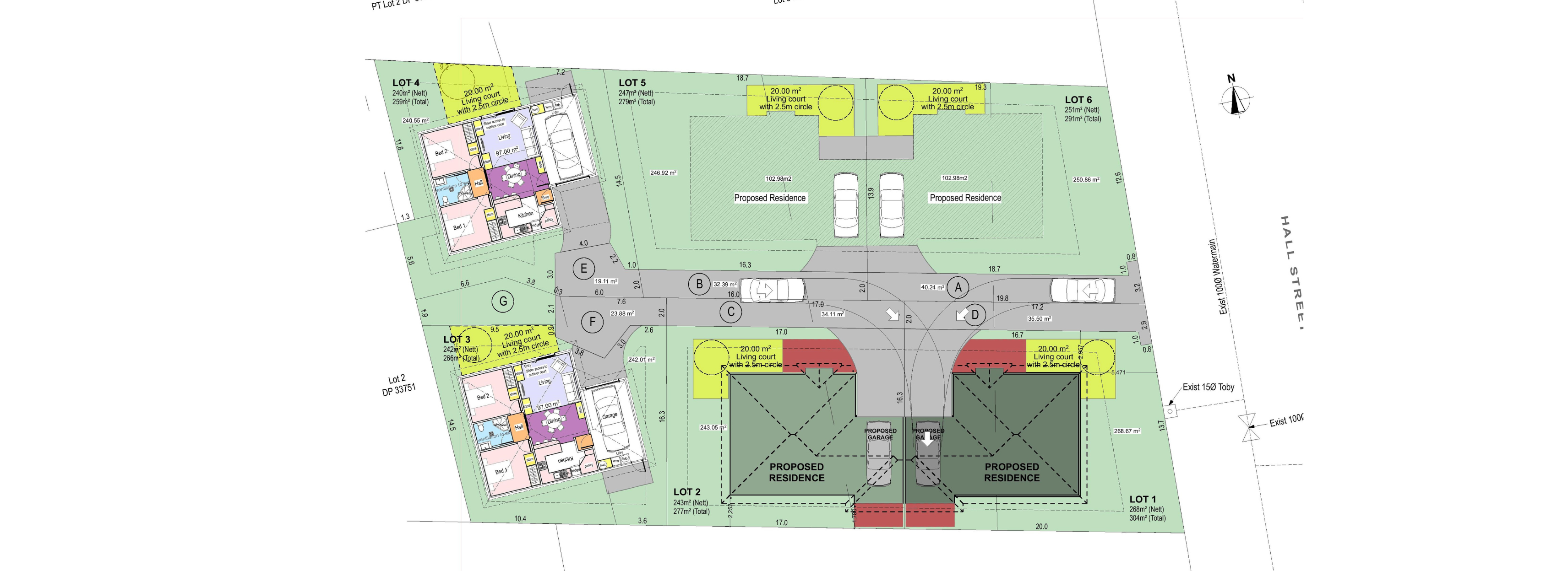
Number 4 Hof Lane is one our townhouses built in our stunning six lot subdivision Hof Lane in Foxton's town centre. You will never get closer to town than this! All the homes in Hof Lane have a cohesive exterior with low maintenance landscaping and each interior is uniquely completed. If you get in early, you can add your flair in the kitchen, bathroom and colour selections. The name ‘Hof’ comes from the Dutch word meaning courtyard or a square that traditionally is a communal outdoor space. Hof Lane is designed to have a community feel, meaning more security, openess and a spacious feel to smaller lots.

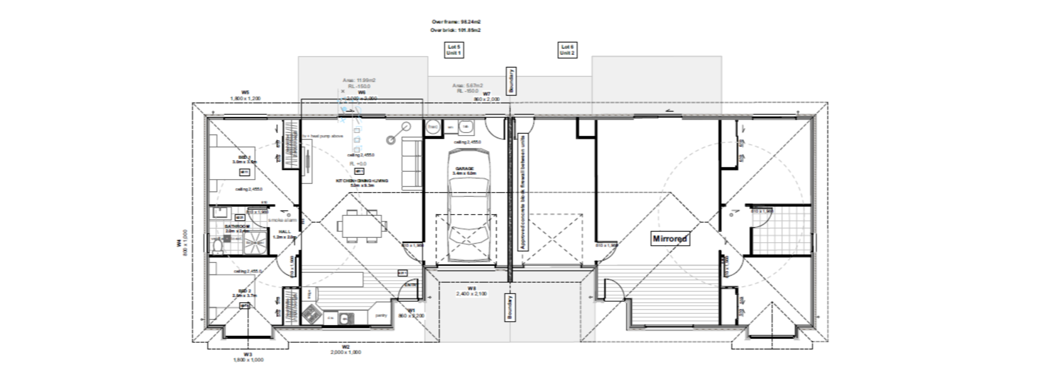
This duplex unit (connected to #2) and sits in the middle of the Hof. The added benefit of this home is the private north-facing living area that extends onto a larger lawn adjacent to Hall Street. The grounds and exterior of the home are designed for easy maintenance. Cleverly designed to maximise space, it features two bedrooms and a generous open plan living area with heatpump. The custom designed kitchen is in light, contemporary colours and features a stone benchtop and comes with quality appliances. The easy care section will be landscaped and will feature raised garden beds with a combination of privacy screening and open areas. Perfectly located, with everything you need, including a supermarket, garage, hairdresser, library, pool, museum, cafe, shops, medical centre and Foxton Little Theatre within easy walking distance.

→  Building is starting soon

Construction of this home is starting soon, in 2026.

Note, photos are from the completed unit across the lane. Expect a similar design and specification

→ Like the design? 

Contact us and we can work with you to create a similar stunning home on land of your own.

→ Builder's Warranty 

All our homes come wIth quality fixtures and fittings and a 10 Year Builders Warranty. We build homes that cost less without compromising quality. We use reputable, established supply chains for your security and our kitchens are custom designed.

ALL PLANS COPYRIGHT HOMEBUILD HOMES LTD

 Share

Facebook   Tweet

 Features

Plan Information

Bed: 2
Bath: 1
Size: 102.00

Garage Information

Garaging: 1
Garage description: Internal Access

Land Information

Subdivision: 291m2
Land Holding Type: Freehold

 Neighborhood

Super market 2 minutes by Walk
School 3 minutes by Car
Park 5 minutes by Walk
Beach 7 minutes by Car
Coffee shop 5 minutes by Walk
Train station 20 minutes by Car
Police station 2 minutes by Walk
Hospital 20 minutes by Car
Town center 2 minutes by Walk
Shopping center 2 minutes by Walk

 Tell a Friend

       

  Request more Details