Plan 235ML Plans

Call for details price
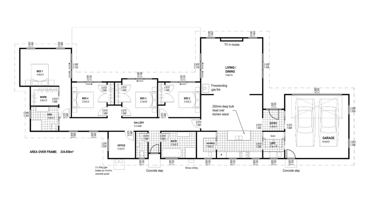
  • 4 Beds
  • 2 Baths
  • 235 Size

 Description

LONG AND LIVEABLE: This design works well with a mono or traditional roof.

A contemporary home with the special feature that make modern living magic including a cooks’ kitchen and scullery, open plan living and a separate internal laundry. The house wraps around a sheltered outdoor courtyard, a sheltered sun trap that is perfect for outdoor living and dining.

All four double bedrooms have outdoor access, and the master has very generously sized ensuite and walk in robe.

Perfect for long, narrow sections.

 

Easily customizable:  If you like the plan but prefer a traditional roof, check out Plan 215L. For an option with a fifth bedroom or office, check out Plan 235ML.

 

ALL our homes come with quality fixtures and fittings and a 10 Year Builders Warranty. We build homes that cost you less without compromising on the quality. Ask us for more information on the features we include, and how we manage to do this for less.

Whilst we endeavour to provide you with accurate price estimates, the building industry is experiencing extreme levels of pricing instability due to demand and product supply issues. The estimates are our best calculation at the time of publishing. Prices are subject to change. Features mentioned above or in the photos may be upgrades to the stated price. You are able to customize this plan, at extra cost. For further information about what is, and is not, included in the House Only price, contact us

ALL PLANS COPYRIGHT HOMEBUILD HOMES LTD

 Share

Facebook   Tweet

 Features

Plan Information

Bed: 4
Bath: 2
Size: 235.00

 Tell a Friend

       

  Request more Details

Search properties

  • Details
  • -
  •