Street Smart Plans

Call for details price
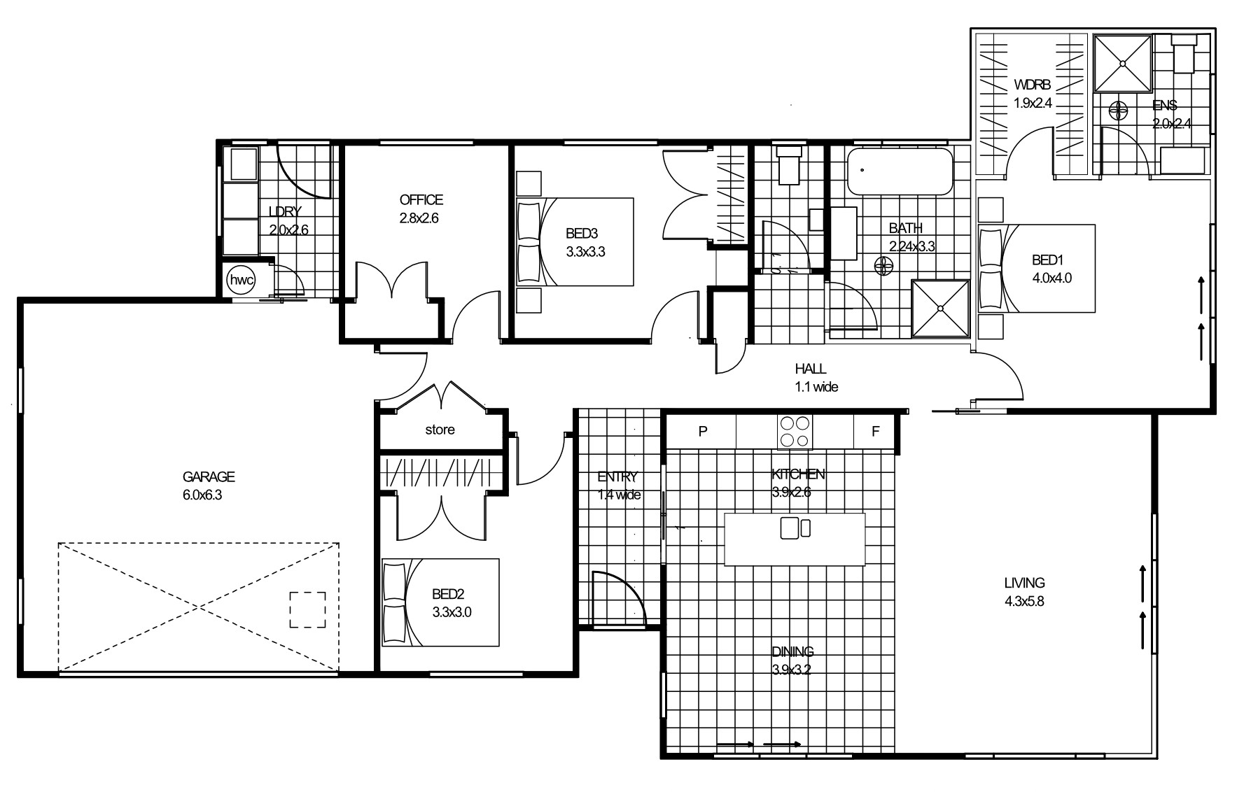
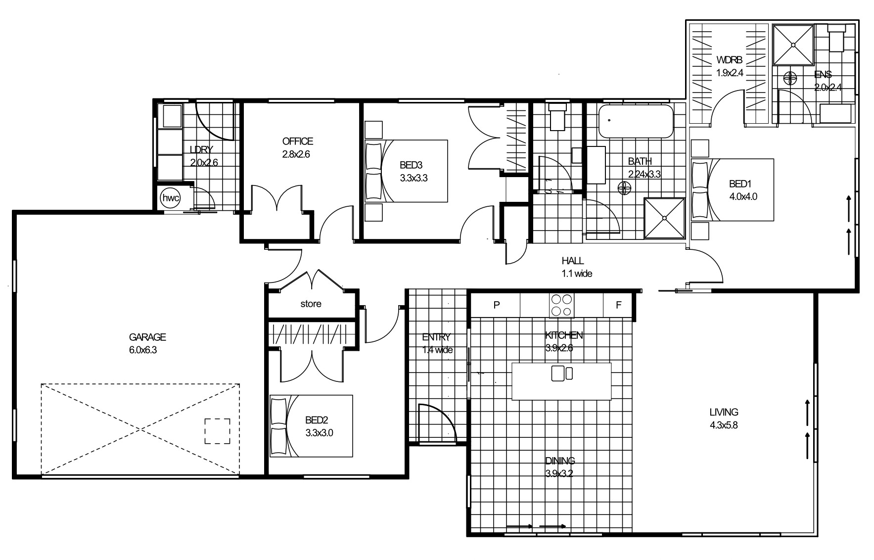
  • 3 Beds
  • 2 Baths
  • 195 Size

 Description

SLEEK, CONTEMPORARY & VERSATILE: for the modern family

A stunning home where modern architecture meets sleek design. This contemporary masterpiece features the striking lines of a black monopitch roof and dark vertical cladding, setting the stage for a truly distinctive first impression.

Step inside to discover a spacious haven, boasting three double bedrooms alongside a versatile office or single bedroom, providing ample space for both relaxation and productivity. The heart of this home lies in its open-plan living area, where an entertainer's kitchen takes center stage. With its sleek finishes and thoughtful layout, this kitchen is not only a culinary delight but also a hub for social gatherings and memorable moments with loved ones.

For those seeking cozy evenings, an optional log fire awaits, providing warmth and ambiance against the backdrop of modern elegance.

With its striking exterior, versatile interior spaces, and thoughtful design elements, our new build house offers the perfect blend of style and functionality for contemporary living. Experience the epitome of modern luxury in a home designed to inspire and delight.

 Share

Facebook   Tweet

 Features

Plan Information

Bed: 3
Bath: 2
Size: 195.00

 Tell a Friend

       

  Request more Details

Search properties

  • Details
  • -
  •