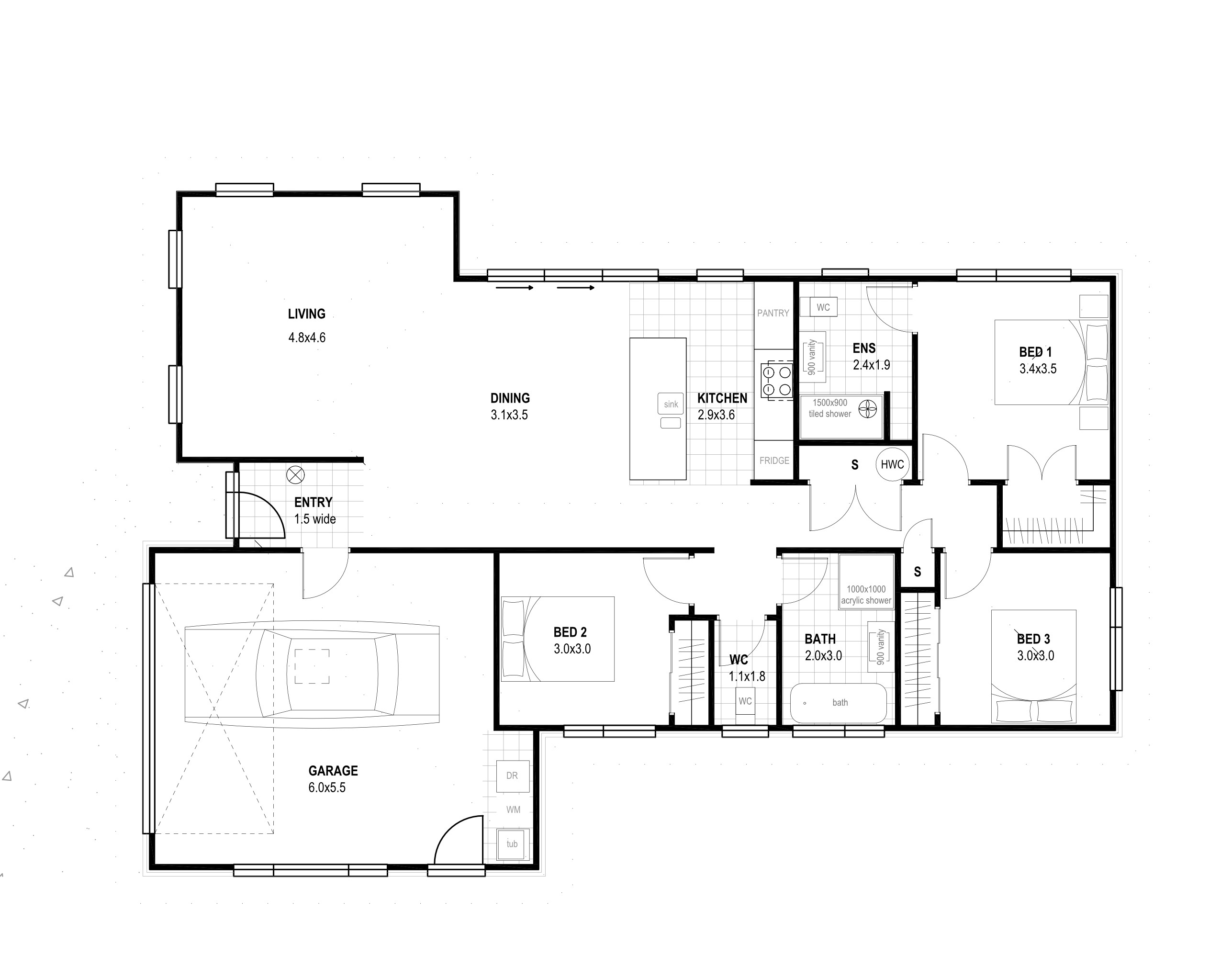
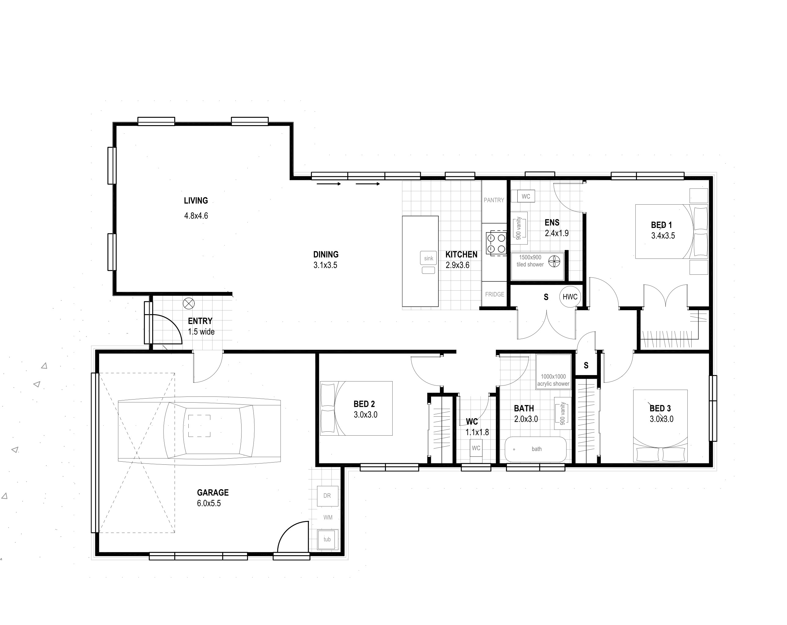
We call this home The Boxer because it packs a real punch! Clever, cost effective and versatile, this well-considered home offers a practical family layout with generous living spaces and excellent separation between communal and private zones. At the heart of the home is a spacious open-plan living and dining area. The living room is substantial in size, with multiple windows inviting in natural light, while the adjoining dining area connects seamlessly to the kitchen which is centrally positioned and highly functional, and features a large island bench with sink, ample workspace, a dedicated pantry and easy flow to both dining and hallway areas, ideal for everyday family life and entertaining.
The bedroom wing is thoughtfully arranged for privacy. The master bedroom is positioned at one end of the home and includes its own ensuite with shower, vanity and WC. Bedrooms two and three are located toward the rear, each with built-in storage and easy access to the family bathroom, which includes a bath and separate shower. A separate WC adds practicality for busy households.
Storage has been carefully integrated throughout, with multiple linen cupboards and a dedicated hot water cupboard. The internal hallway connects all bedrooms efficiently while maintaining clear separation from the living zone.
The home also includes a generous double garage with internal access, as well as a dedicated laundry area within the garage, complete with tub and space for washer and dryer. The entry foyer provides a defined and welcoming arrival point, linking directly to the main living space.
Overall, this home balances comfort and functionality, offering spacious communal areas for gathering and well-proportioned bedrooms for retreat, making it an ideal layout for families, downsizers wanting space, or anyone seeking easy, single-level living.
Images and artists’ impressions may contain features not in the plan or price. Plans ©Homebuild Homes Ltd 2025.