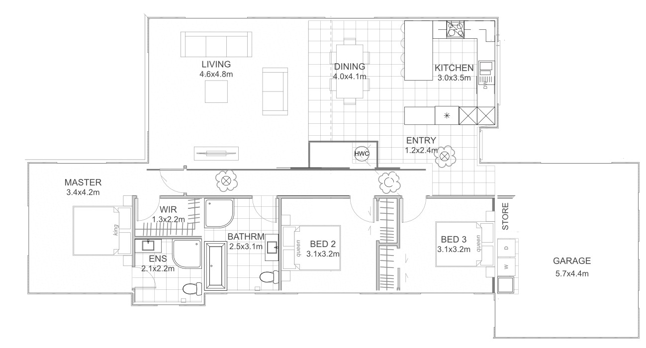
The Nestledown155: Plan 155L Priced Plans

$ 450,000
  • 3 Beds
  • 2 Baths
  • 155 Size

 Description

FIRST HOME OR DOWNSIZING: perfect for young families.

 Designed for the first home buyer with a young family or those who are downsizing, this property features 3 bedrooms, including a roomy master with ensuite and walk- in wardrobe. The open plan lounge, dining room and kitchen gives this home a spacious feel. 

→ Features

This plan features two well appointed bathrooms. The ensuite has a shower, toilet and wall-mounted vanity while the second one includes a shower, toilet, and wall-mounted vanity and a bath. 

→ Add-ons and extras 

If space and budget allows, you could include a patio-covered or not - with access via sliding doors off the living area and master bedroom. If you need more storage for your cars, upsizing the garage to a double adds about 12m2 – allow about $18,000 extra (The Nestledown170: Plan 170B5). 

 

ALL PLANS COPYRIGHT HOMEBUILD HOMES LTD

 Share

Facebook   Tweet

 Features

Plan Information

Bed: 3
Bath: 2
Size: 155.00

 Tell a Friend

       

  Request more Details

Search properties

  • Details
  • -
  •