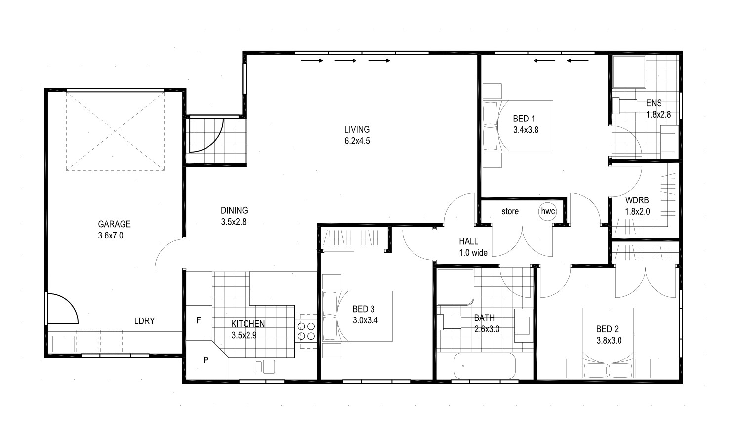
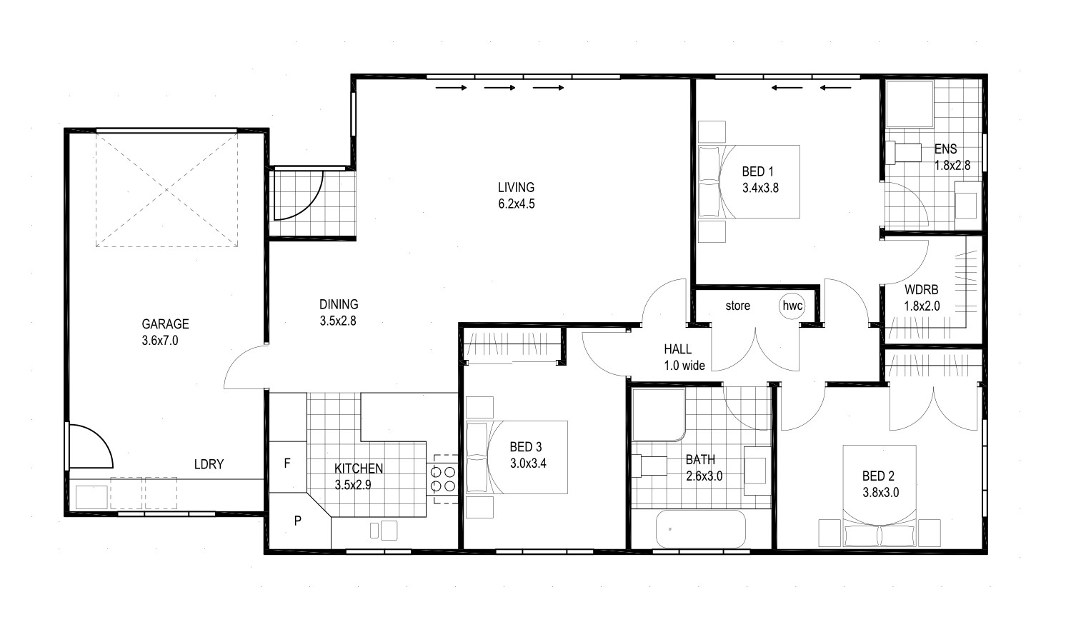
The Spacious Place: Plan 145L Priced Plans

$ 435,000
  • 3 Beds
  • 2 Baths
  • 143 Size

 Description

COMFORT AND FUNCTIONALITY: spacious and easy living.

Discover the perfect blend of comfort and functionality in this surprisingly spacious 3 bedroom, 2 bathroom home. Thoughtfully designed with an open layout, it offers generous living areas and an abundance of natural light. Each bedroom is well-sized, while the primary suite features its own walk in wardrobe.

 

→ Extra storage 

What truly sets this home apart is the impressive amount of storage – including large bedroom wardrobes and linen cupboard. Ideal for familires or anyone craving extra space, this home delivers more than meets the eye. 

→ Flexible design 

This plan can be flipped, stretched, rotated or the garage upsized to a doubel to suit the site or your lifestyel neeeds. 

→ Add ons 

A fully insulated an dcarpeted garage upscales into an activity room.

ALL PLANS COPYRIGHT HOMEBUILD HOMES LTD

 Share

Facebook   Tweet

 Features

Plan Information

Bed: 3
Bath: 2
Size: 143.00

 Tell a Friend

       

  Request more Details

Search properties

  • Details
  • -
  •