The Fern 125 | Compact 3 bed home Plans

Manawatu-Whanganui
$ 380,000
  • 3 Beds
  • 1 Baths
  • 125 Size

 Description

DESIGNED TO DELIVER COMFORT AND VALUE: perfect for new smaller sections around the Manawatu and Horowhenua

 

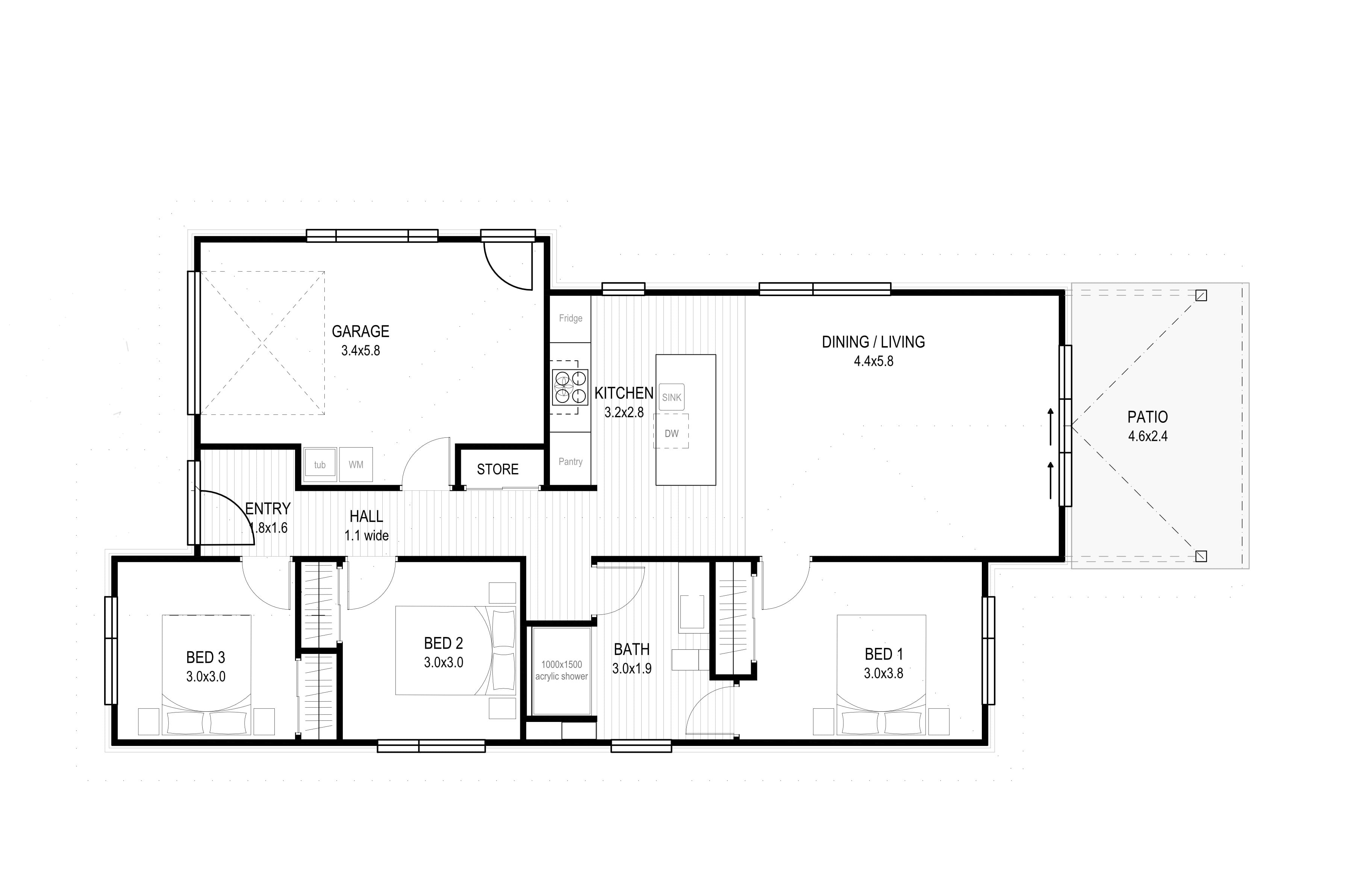
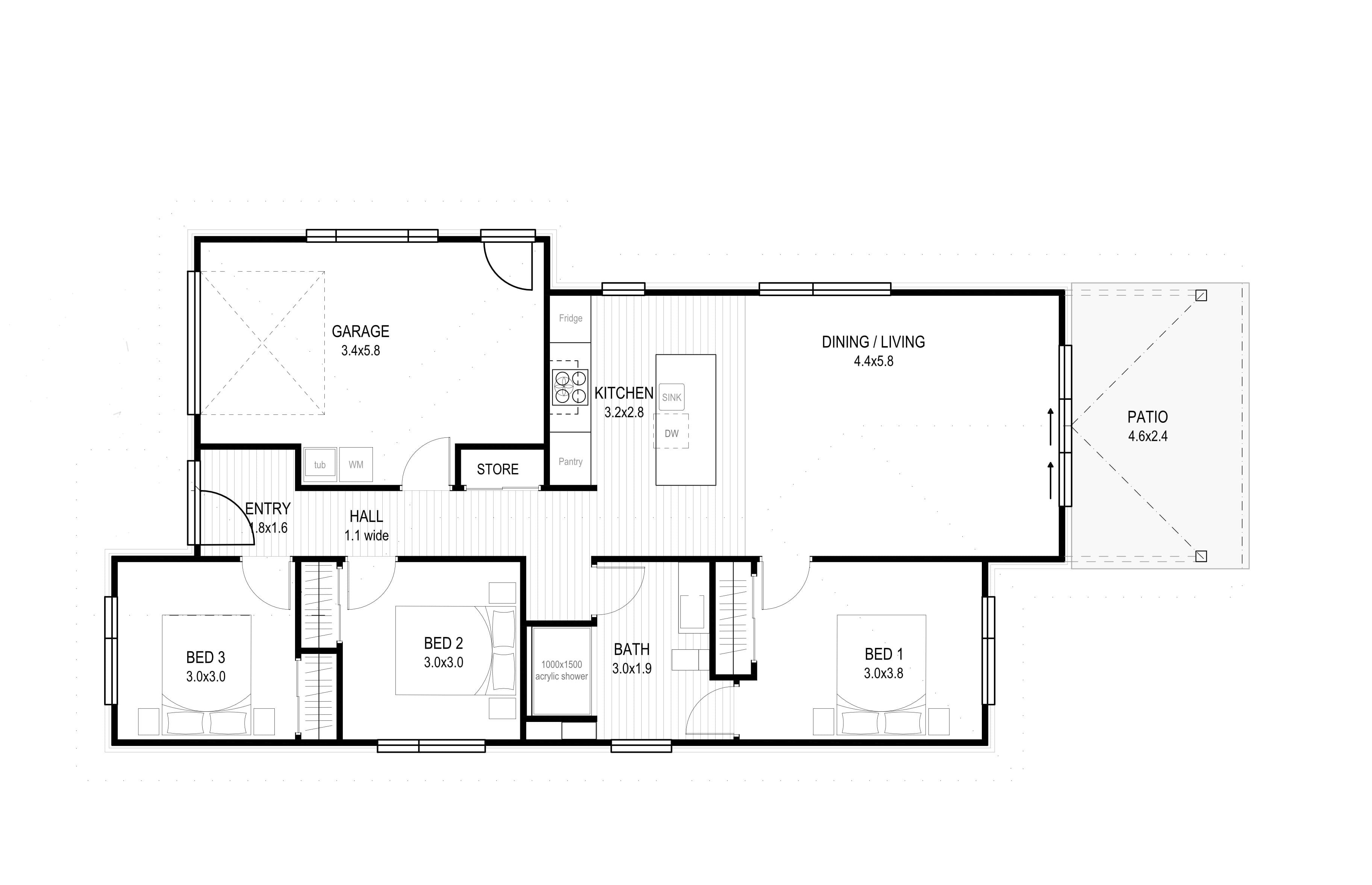
The Fern 125 is designed to do one thing really well — make the most of every square metre

At 125m², this 3 bedroom house plan is designed right here in the Manawatu. It avoids wasted space and focuses on what matters: open, functional living, comfortable bedrooms, and a layout that works for everyday life. Can be built with or without the 11m2 covered patio, depending on your section and budget. It's an affordable new home design that delivers all the basics, plus a bit extra.

The central open-plan kitchen, dining, and living area is the natural hub of the home, with great indoor-outdoor flow to the covered patio. The three-bedroom layout gives you options — whether that’s family living, a home office, or a rental-ready configuration.

This is a cost-efficient design to build, with it's compact and relatively simple shape. A focus on budget friendly building doesn't mean your choices are limited. The Fern 125, designed to be built in low maintenance brick, has a selection of 10 colours in our standard range - with options to upgrade the bricks or change the cladding type. We offer choice without cutting corners on quality. All our homes come with quality fixtures and fittings, from reliable brands and suppliers. Like all Homebuild plans, it can be customised to suit your section, orientation, and budget — often with minimal or no impact on overall cost.

This compact smaller home design works well on the smaller sections available in new subdivisions like Tamakuku Terrace in Palmerston North and Awa Park, Feilding. We’ve built variations of this type of home around the Manawatu so we know how to get the balance right between price, practicality, and long-term livability.

If you like the features in this home, check out The Freedom 115 - our two bedroom option.

 → Who this home suits

  • Downsizers looking for extra bedrooms for hobbies or grandchildren
  • Entertainers who love to BBQ but are realistic about Manawatu weather!
  • First or second home buyers looking for a modern home that's value for money

 → Key Features

  • Smart 125m² home design layout with minimal wasted space - fits smaller and subdivided urban sites
  • 3 double bedrooms 
  • Open plan living designed for sun and flow
  • Cost-effective build without compromising quality
  • Option of ensuite access from either Bed 1 or Bed 2
  • Easily customised to suit your section and lifestyle - convert to a two bedroom home for expanded kuvubg

  → Three ways to easily customise this design

  • Create ensuite access from either Bed 1 or Bed 2 - or remove if you don't think this is necessary
  • Convert to a two bedroom home to increase the living space
  • Reduce or remove the covered patio if the plan doesn't quite fit your section

 → About us

  • With over 30 years building in the Manawatu and surrounding regions, we focus on delivering homes that are practical, well-designed, and priced right from the start.
  • No salespeople — just experienced builders working with you to get the best result for your budget.
  • All our homes are backed by our 10-Year builder's warranty

 Share

Facebook   Tweet

 Features

Plan Information

Bed: 3
Bath: 1
Size: 125.00

 Tell a Friend

       

  Request more Details

Search properties

  • Details
  • -
  •