Homestead Luxe: 4 Bedroom Luxury Lifestyle Home Plans

Call for details price
  • 4 Beds
  • 2 Baths
  • 257 Size

 Description

PLAN 260L | Rural & Lifestyle Homes Built by Homebuild Homes

 

Homebuild Homes are experienced lifestyle builders based in Palmerston North

Specialising in custom homes designed for lifestyle blocks and rural sections, we design and build homes throughout Manawatu, Horowhenua, Rangitikei, Tararua and the Kapiti Coast. Whether you are building your family home on a lifestyle block or creating a rural retreat, our team works with you to design a home that captures sun, views and the best of New Zealand’s indoor-outdoor living.

 

 → One of our most popular rural and lifestyle home designs

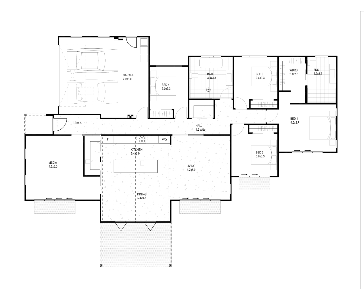
At just under 260m2, this spacoius four bedroom home design is one of our most sought-after family lifestyle homes.  The Homestead Luxe is designed for New Zealand rural living and lifestyle blocks. We have built this stunner in many beautiful spots, including on a hill in Hiwinui just out of Ashhurst; in the beautiful foothills of the Tararua’s just out of Shannon in Horowhenua; and in rural Rangitikei on the outskirts of Marton  in the Whanganui region. It never fails to impress.

 

 → Who This Lifestyle Home Suits

  • Families looking for high quality new homes on lifestyle blocks

  • Owners wanting rural views and indoor–outdoor living

  • Buyers wanting a larger high end home suited to New Zealand rural living

 

 → You can customise this plan!

Because every Homebuild home is customisable, the Homestead Luxe can be adapted to suit your section, views, sun orientation and lifestyle. If you love this design, but your budget is tighter, Homebuild has The Homestead - a 225m2 version of this design offering similar architectural character retaining the feeling of spaciousness in a more efficient footprint.

 

 → What’s special about this home

A hallmark of this design is the thoughtful orientation of the three living spaces, allowing natural light to move beautifully through the home across the day.  The central kitchen forms the heart of the home, while the separate lounge creates flexibility for relaxing or hosting guests. The stunning architectural portico with exposed trusses forms a dramatic outdoor living area, offering shelter from sun and rain while providing the perfect setting for relaxed entertaining. Designed to feel beautifully light and open, the living areas can remain open-plan for effortless flow, or be closed off to create a private media room or formal lounge. The plan also includes a dedicated home office, generous storage throughout, quality fixtures and fittings, and a luxurious master suite complete with ensuite and walk-in wardrobe.

  

 

About the House Only price

 We work really hard to keep our build costs as low as possible. We quantity survey all our builds with a high degree of accuracy, and accurate knowledge of costs, which combined with our lower margin is part of how we keep costs down. Prices are accurate at the time of publishing, but costs change constanlty on the hundreds of materials and labour that make up the build price. Your section and location will impact the final price too; including for exampe, sloping ground, soil conditions and engineering requirements, minimum floor levels,  and the distance getting services to your house.  Some features shown or mentioned may be upgrades to the stated price. For further information about what is, and is not, included in the House Only price, contact us.

 

→ Quality builds backed by a 10-Year Builders Warranty

 All our homes come with quality fixtures and fittings, from reputable brands and suppliers and are backed by our 10-Year Builders Warranty. The products and materials in your home, and the workmanship by our trades come with additional manufacturer and trade warranties. During construction, your home is covered by our Contract Works insurance. Homebuild is a safe choice to build your new home!

 

 The Images and photos on this website are all from our homes we have designed and built. They may contain features not in the price or plan shown. Plans ©Homebuild Homes Ltd 2025.

 Share

Facebook   Tweet

 Features

Plan Information

Bed: 4
Bath: 2
Size: 257.00

 Tell a Friend

       

  Request more Details

Search properties

  • Details
  • -
  •